COM_1901 è il progetto che ha dato vita al nuovo locale Il Chiosco dell’Agorà di Cuneo, in Via San Giovanni Bosco 25.
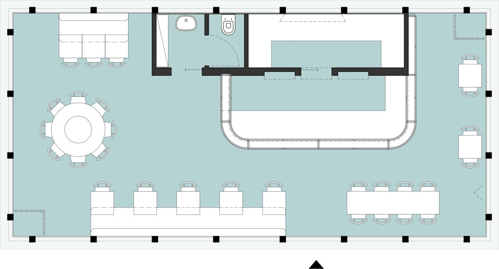
Il nuovo bar nasce all’interno della struttura di un precedente dehor, uno spazio di 70 mq completamente vuoto, vetrato su quattro lati, con un particolare soffitto curvo realizzato con travi a vista.
La richiesta del committente era quella di creare un piccolo spazio di aggregazione, caldo e intimo, che fungesse da bar/caffetteria/tavola calda, ma anche da salotto, ambiente accogliente in cui lavorare o studiare e fermarsi senza fretta.
All’interno dello spazio è stato creato un blocco centrale che porta al suo interno la piccola cucina e un locale di servizio; davanti, il grande bancone decorato in ceramica e la sua sovrastruttura dorata accolgono i clienti.
Arredi imbottiti, colori caldi, verde alle pareti e luci pendenti soffuse sono state scelte progettuali precise per rendere l’ambiente più rilassante e familiare.








